

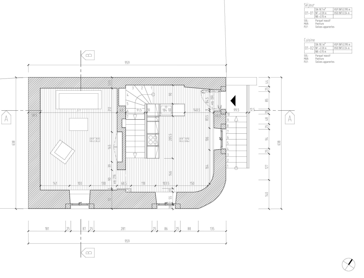
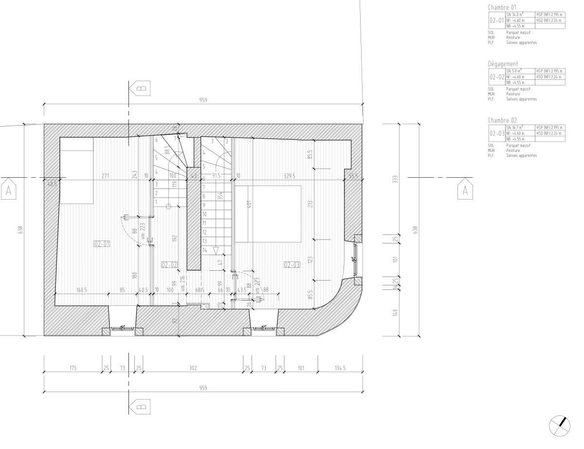
Ce projet de rénovation concerne une maison inscrite à l’inventaire. Il combine respect du patrimoine et confort, avec une toiture entièrement refaite, une isolation optimisée et le remplacement des menuiseries selon les principes de restauration traditionnelle.